EXTERIÉR
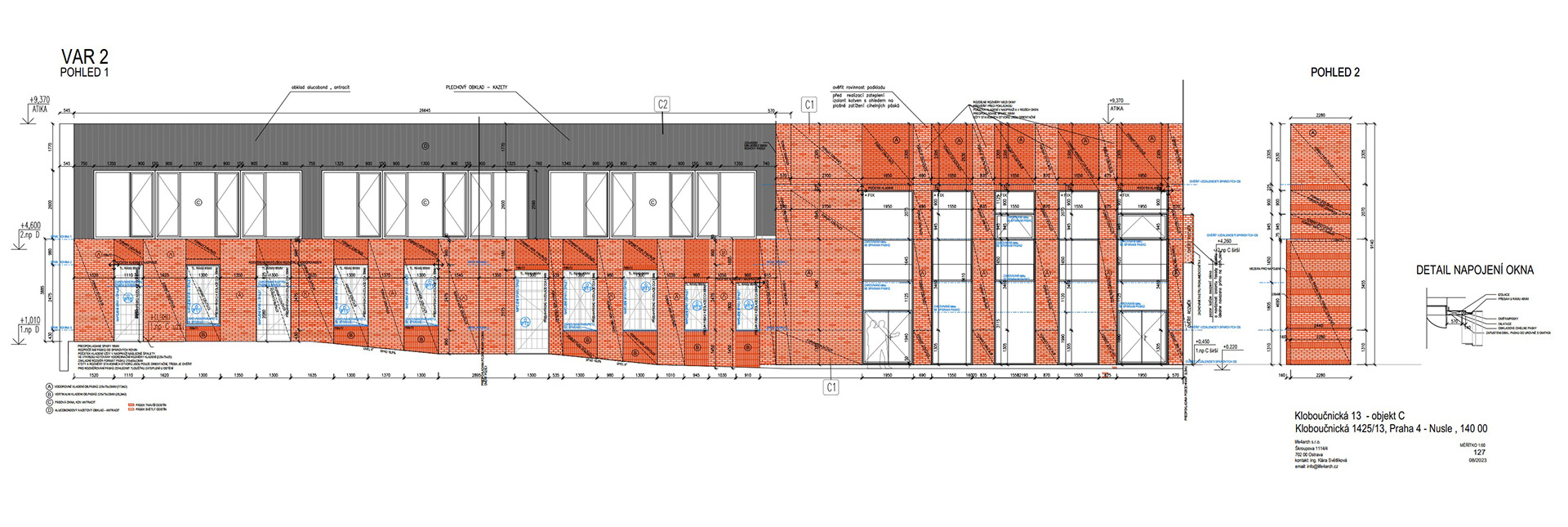
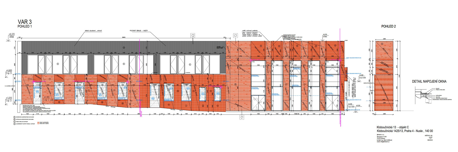
NÁVRH FASÁDY
SCHÉMATA
INTERIÉR UČEBNY
BYTOVÁ ČÁST    7.NP
BYTOVÁ ČÁST 4.-6.NP

You may also like

Back to Top