Úvod
Projekty
Školní projekty
Kontakt
Úvod
Projekty
Školní projekty
Kontakt
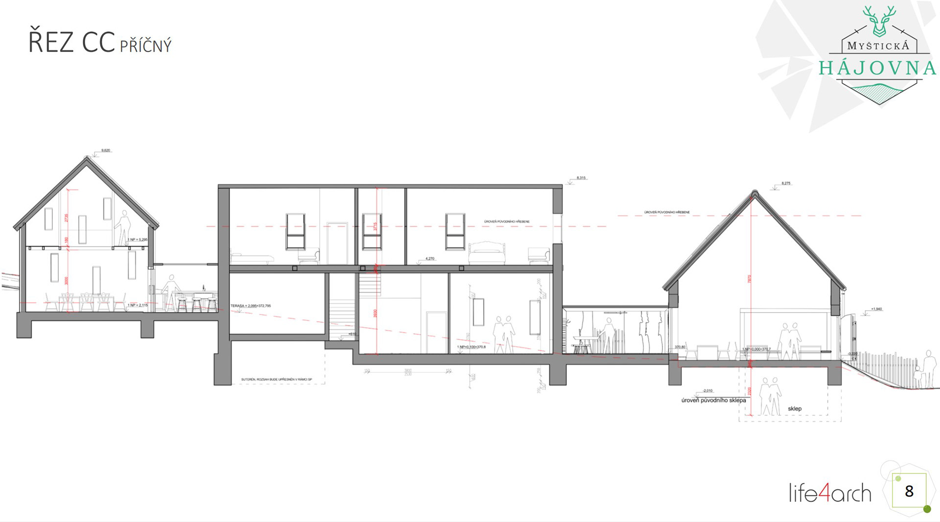
MYŠTICKÁ HÁJOVNA
2021
Vizualizace a 3D model: Ing. arch. Lukáš Janák,
Projekt vypracovali: Ing. arch. Ivana Svatošová, Ing. arch. Lukáš Janák
You may also like
Svojetice
2023
Bohemia Sekt Schodiště
2022
Apartmány Krumlov Art Deco
2021
Byt Kolínská
2022
Zahrada a řadový Dům Roháče
2022
Kloboučnická
2024
MYŠTICKÁ HÁJOVNA
2021
Škola Polepy
2023
Roháče interiéry
2022
Austrálie
2024
↑
Back to Top
Zde vložte kopii pro banner o souborech cookie.
Přijmout
Nesouhlasím